Eria Gayrimenkul Yatırım
Eria Gayrimenkul Yatırım
- Foster + Partners (original concept)
- kr2b Architecture (redesign & construction documents)
Mixed-Use, Office
Completed 07/2018
approx. 65.000 m²
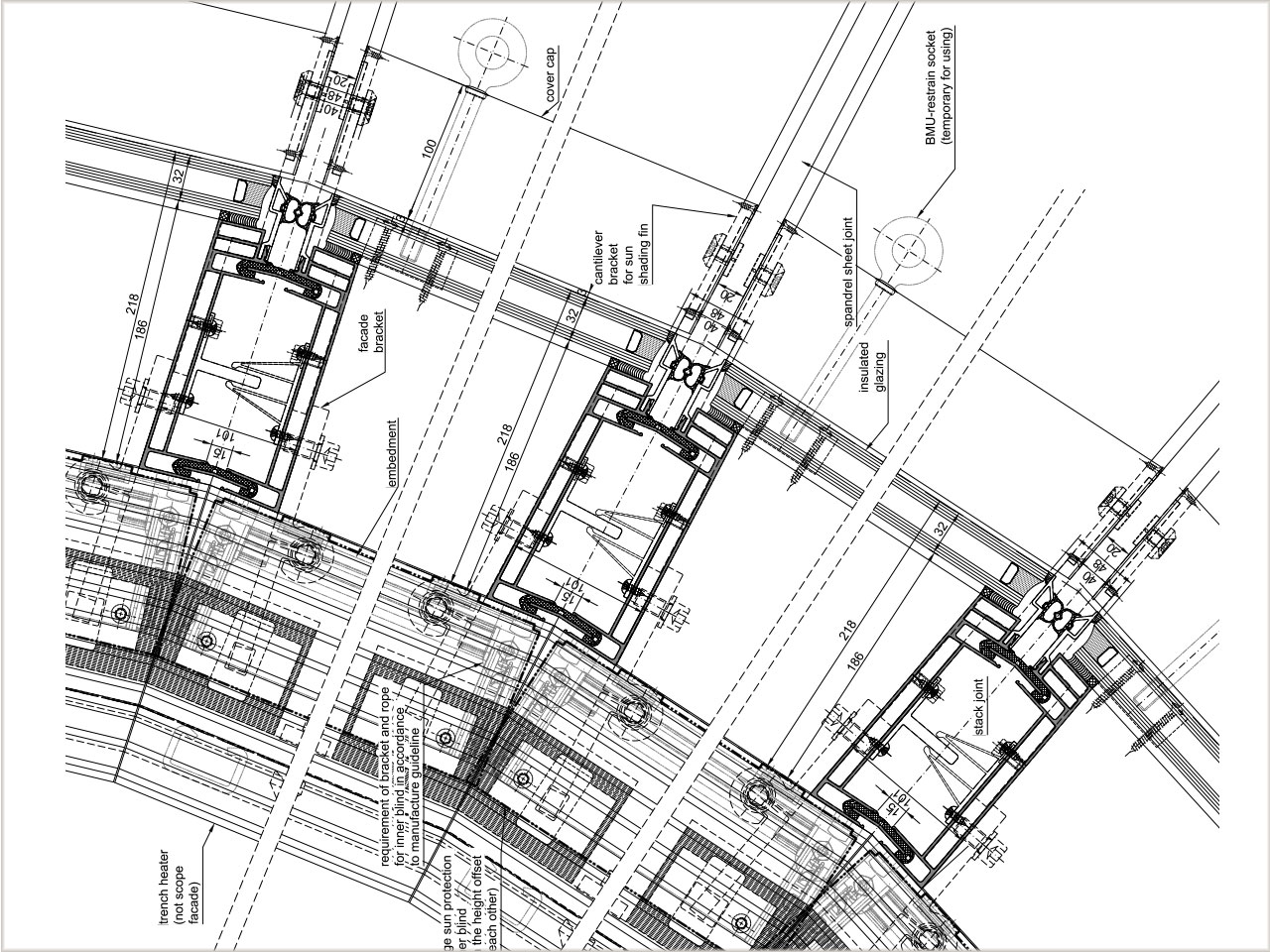
approx. 124 m
At Priedemann any project starts with the determination of the planning basis, with the facts, requirements and possibilities – no matter when we start and always together with everyone involved in the project
Priedemann develops the facade concept for planning ready for approval – taking into account all planning principles and requirements determined up to that point, e.g. the climate plan, building technology and building statics.
Priedemann sees the implementation planning as a precise simulation of the construction process and the building – in detail, digitally and, depending on the complexity, as a 3-dimensional model.
For tendering and awarding contracts Priedemann defines and specifies the planned facades and details as well as the connections to adjacent components.
Priedemann provides clients with comprehensive advice independent of individual manufacturers and systems when selecting the best award procedure and the most suitable manufacturer.
We know the market: Our experience from hundreds of projects with various manufacturers is incorporated into our consulting services.
The first phase after the award of the contract is of particular importance. Often some time has passed since planning and a number of changes may have occurred, the planning team has changed, user requests have been added or additional requirements are putting pressure on the budget. Priedemann checks and assesses whether all of the documents are up to date, complete, feasible and if any improvements can be made, coordinates change management and is the contact for all questions of the planning team concerning the facade.
Before the work is plannedScale does not just changes the perspective and the proportions, only in the 1:1 model can the loads a component is exposed to be tested realistically.
Usually, mock-ups are only created after being awarded to the manufacturer of a facade. We support the planning and implementation already during the planning phase in order to ensure greater reliability of planning, design and implementation at an earlier point in time.
The supervision of assembly and installation is particularly important for us, to ensure the agreed quality. Our principle is that deviations from the agreed planning must be identified at an early stage, documented and the implementation corrected. This controlling refers both to production and manufacturing as well as to the assembly on the building site:
Regular inspection of production and assembly in the factoryValue Engineering is part of the Priedemann DNA. We ask about the motives and objectives of a project: Which functions should the facade fulfill, which requirements? What is the design requirement? Based on this, we develop alternatives and evaluate these options with regard to any possible improvements that can be made to the overall solution. At the same time, we take into account the criteria of the entire building life cycle.
The aim is to provide a transparent basis for making decisions in order to make them easier for our clients. This minimizes risks, bad planning and poor decisions. Simultaneously we improve the calculability of the overall project and save time in planning and execution. We see value engineering as a fundamental component in overall planning which helps optimize all processes and procedures.
Facades have to cleaned and maintained. What sounds trivial is a component of facade planning and maintenance, which ensures the long-term value of a project, so it should not be underestimated. Priedemann keeps operating costs low by making the logistics of maintenance and cleaning an integral part of the planning right from the start. This is not only about equipment for maintenance and cleaning, the type and design of the facade itself can make a decisive contribution. Facade solutions that do not take this into account during planning and construction make maintenance more expensive over the entire service life.
© 2025 Priedemann
