Seitenwechsel

Eine Fassade, inspiriert durch die molekularkristalline Struktur von Kupfer, das ist das Erkennungsmerkmal der Russian Copper Company RMK. Die Fassade besteht aus einem Gitterwerk von Pyramiden deren Seitenflächen als Sonnenschutz dienen, so dass die hochstehende Sommersonne abgeschirmt wird und die tiefstehende Wintersonne das Gebäude zusätzlich erwärmen kann.

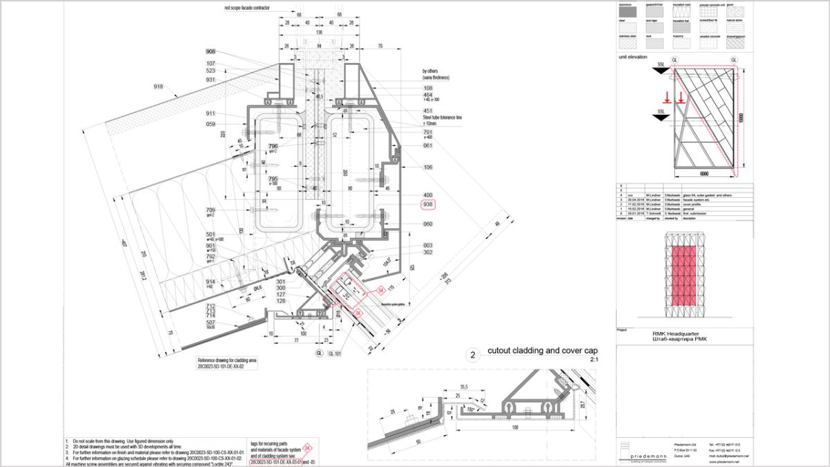
Die Fassade folgt den Büroeinheiten, die jeweils über 2 Etagen organisiert sind. Es entstehen Elemente von bis zu 6 × 12 Metern mit einem Gewicht von bis zu 12 Tonnen. Klingt nach einer hochkomplexen Aufgabe? Klingt nach einer besonderen planerischen Ingenieurleistung zur Gebäudehülle, einem klassischen Fall für Priedemann!

Mit dem Auftrag für die Ausführungsplanung, Ausschreibung und das Reinigungskonzept kamen wir an Bord. Später waren russische Materialien, Produkte und lokale Fertigung gefragt.

Das sorgte für Bedenken, ob der Designanspruch auch umgesetzt werden könne. Wir begegneten den Zweifeln und schlugen vor, von der Planung in die Ausführung zu wechseln, um so unser Planungs-Know How in die Engineering-Phase zu überführen.

Unser Wechsel von Foster + Partners auf die russische Auftraggeber Seite und die kontinuierliche Projektbegleitung sicherte den gestalterischen Anspruch. Von da an waren wir für das gesamte Engineering mit Systemdesigns, Glas- und Fassadenstatik, thermischer Bauphysik, Werkplanung und Fabrikationsdokumentation verantwortlich. Ebenso wie für die Test- und Visual Mock-Ups.

Und wie verlaufen die Anschnitte und Dichtebenen in einem Knotenpunkt mit 12 verschiedenen Profilen?

Virtuelle 3D-Modellen stießen da an ihre Grenzen. Wir schufen uns 3D-gedruckte Profile zum Ausprobieren – dann waren wir sicher, dass alles passt.

Bis dahin war alles durchdacht, bis zur Maschinenansteuerung tausende Datensätze generiert, aber wie konnten wir bei einem so komplexen Fertigungsprozess die vereinbarten Qualitäten und Termine sichern?

IKEA inspirierte uns – für die Montage der Elemente im Werk und auf der Baustelle verfassten wir je ein Handbuch und begleiteten zusätzlich die Arbeiten vor Ort.

Mit Ideen, Engagement, digitaler Anwendung und einer Fassaden-Verantwortlichkeit vom Start bis zum Ziel gelang es uns eine einmalige Fassade zum Leben zu erwecken.

Besuchen Sie die Projektseite für mehr Details