Cengiz-Kolin-Limak Joint Venture
TCDD – Staatliche Eisenbahngesellschaft der Republik Türkei
A Tasarım Mimarlık/ Ali Osman Öztürk
Bahnhof, Mischnutzung, Shopping, Hotel
Fertiggestellt 06/2016
ca. 30.000 m²
ca. 45 m
Der Projektstart beginnt bei Priedemann mit der Ermittlung der Planungsgrundlagen, mit den Fakten, Anforderungen und Möglichkeiten – egal, zu welchem Zeitpunkt wir einsteigen und immer gemeinsam mit den Projektbeteiligten
Auf Grundlage der strategischen Zielstellung entwerfen wir verschiedene Varianten, benennen deren Vor- bzw. Nachteile und entwickeln und entwickeln die präferierte Lösung weiter.
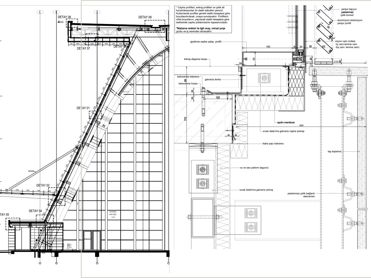
Für die genehmigungsreife Planung erarbeitet Priedemann das Fassadenkonzept – unter Berücksichtigung aller bis dahin ermittelten Planungsgrundlagen und Anforderungen, wie z.B. Klimakonzept, Gebäudetechnik und Gebäudestatik.
Priedemann begreift die Ausführungsplanung als präzise Simulation von Bauprozess und Gebäude – detailliert, digital und je nach Komplexität auch als 3dimensionales Modell.
Für Ausschreibung und Vergabe konkretisiert und spezifiziert Priedemann die geplanten Fassaden und Details sowie die Anschlüsse zu angrenzenden Bauteilen.
Priedemann berät Auftraggeber hersteller- und systemunabhängig und umfassend bei der Wahl des optimalen Vergabeverfahrens und des geeignetsten Herstellers.
Wir kennen den Markt: Unsere Erfahrung aus hunderten, mit unterschiedlichen Herstellern realisierten Projekten fließt in die Beratung ein.
Der ersten Phase nach der Vergabe kommt eine besondere Bedeutung zu. Häufig ist seit der Planung einige Zeit vergangen und eine Reihe von Änderungen können sich ergeben haben, das Planungsteam hat sich geändert, Nutzerwünsche sind hinzugekommen oder zusätzliche Anforderungen drücken auf das Budget. Priedemann prüft und bewertet alle Unterlagen auf Aktualität, Vollständigkeit, Realisierbarkeit und mögliche Optimierbarkeit, koordiniert das Änderungsmanagement und ist Ansprechpartner für alle die Fassade betreffenden Fragen des Planungsteams.
Vor der Werkplanung
Während der Werkplanung
Zusätzliche Leistungen
Mit dem Maßstab ändern sich nicht nur der Blickwinkel und die Größenverhältnisse, erst im 1:1-Modell können die Belastungen eines Bauteils realitätsnah getestet werden.
Gewöhnlich werden Mock-ups erst nach der Vergabe an einen Fassadenhersteller erstellt. Wir unterstützen die Planung und Ausführung bereits während der Planungsphase, um zu einem früheren Zeitpunkt mehr Planungs- Gestaltungs- und Ausführungssicherheit zu gewähren.
Physische Mock-ups:
Visuelle Mock-ups:
Die Überwachung von Fertigung und Montage ist uns besonders wichtig, um die vereinbarte Qualität auch wirklich abzusichern. Es gilt, Abweichungen von der vereinbarten Planung frühzeitig zu erkennen, zu dokumentieren und die Ausführung zu korrigieren. Dieses Controlling bezieht sich sowohl auf die Herstellung und Fertigung sowie auf die Montage auf der Baustelle:
Regelmäßige Überprüfung von Fertigung und Montage im Werk
Regelmäßige Inspektion auf der Baustelle
© 2025 Priedemann
