5starAction

Das „beste Hotel Deutschlands“ und „eines der besten Europas“ sollte es werden – so hoch hing die Messlatte für das 5-Sterne-Plus-Hotel The Fontaney, dessen Entwurf wir vom Wettbewerb an begleitet konnten.

Gemeinsam mit den Architekten von Störmer Murphy & Partner entwickelten wir zwei individuelle, sehr gegensätzliche Fassadenkonzepte, die jeweils auf die Außen- und Innen-Situation des Baukörpers maßgeschneidert waren.

Für die Balkone, natürlich mit Alsterblick, schlugen wir ein Schiebetürsystem mit ultraschmalen Profile vor, um eine ungestörte Aussicht zu ermöglichen. Für das Atrium konzipierten wir eine farbig akzentuierte, aus sich heraus leuchtende Schuppenfassade, für die kein übliches System verfügbar war und Brandschutzanforderungen erfüllen musste.

Mit diesen Ideen gewann unser Team den Wettbewerb und wir wurden Teil der Generalplaner.

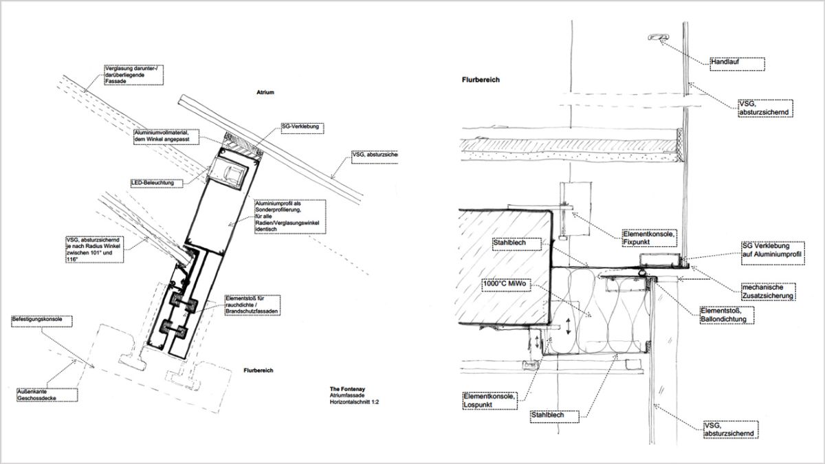
Bei der Fassadenplanung galt unser Augenmerk von Beginn an der Schnittstelle zwischen Rohbau und Fassade. Die Leitdetailplanung dieser Fassade war der entscheidende Faktor.

Die Diskrepanz zwischen einer naturgemäß groben, mit Toleranzen behafteten, kriechenden und schwindenden Stahlbetonkonstruktion und einer filigranen, nach Schweizer Uhrmacherpräzision gefertigten Fassade galt es, in den Griff zu bekommen. So untersuchten wir von der ersten Skizze an, wie die schmalen Profile auf den sich durchbiegenden Decken eingesetzt werden können, ohne dass sich die Türen verwinden oder es durch die Ritzen zieht.

Die Mehrkosten, die wir für dieses ultraschlanke, aber hochflexible und robuste Schiebetürsystem kalkuliert hatten, investierten die Bauherren bewusst. Für ihre Hotelgäste ist nun beim Blick auf die Alster die Grenze zwischen innen und außen nahezu unsichtbar.

Die zweite Herausforderung war die Atrium Fassade.

Ihre Ausführung in der jetzt gebauten Realität gleicht der Visualisierungen im Wettbewerb wie ein Ei dem anderen. Bei dieser Fassade aus mattierten Verbundgläsern mit farbiger Folie, die über eine der Längskanten zum Leuchten gebracht werden, ist die gesamte Halterung nicht sichtbar zwischen den Glasschuppen verborgen. Diese einzigartige, dezent farbig schimmernde Verkleidung, stellt gleichzeitig die Brandschutztrennung zwischen Atrium und den Hotelfluren her und sorgt zudem für eine akustisch angenehme Atmosphäre in der Atrium Lobby.

Außen verschwindend schön und innen geschupptes Cocktail-Kleid mit Brandschutzanforderung. Diese konträren Pole ästhetischer Fassadengestaltung mit entwickeln zu können war für uns herausfordernd und erfüllend zugleich.

Besuchen Sie die Projektseite für mehr Details