Rasterfahndung

Kleiner Eingriff, große Wirkung

Großformatige Metallblenden, deren geometrisches Muster an die traditionellen Sonnenschutzgitter im arabischen Raum, die Maschrabiyya, erinnern: Das ist das Kennzeichen des Qatar Petroleum District, einem 10 Büro- und Hoteltürme umfassenden Komplex in Katars Hauptstadt. Die Türme mit Höhen zwischen 70 und 150 Metern weisen eine Fassadenfläche von insgesamt rund 380.000 Quadratmetern auf.

Von der Unternehmensgruppe KEO International wurden unsere Fassadeningenieure mit der Fassadenplanung beauftragt. Zudem übernahmen wir auch die Erstellung der Ausschreibungsunterlagen, des Reinigungskonzepts, sowie die Ausführungsüberwachung der gesamten Gebäudehülle.

Besonderes Optimierungspotenzial sahen wir bei den individuell gestalteten Maschrabiyya.

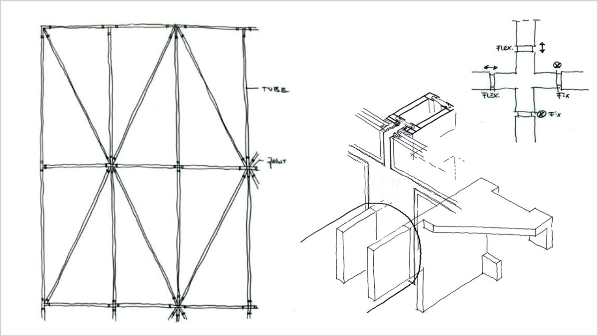
Neben Vorschlägen für die Materialien der Gebäudehülle, die Konstruktion und die Füllungen – die wir als Entscheidungshilfe und Diskussionsgrundlage als 3D-Modelle renderten – untersuchten wir, mit Blick auf den Montageablauf, mögliche Rohrquerschnitte, verschiedene Eckknoten sowie die Anordnung der Los- und Festpunkte.

Vor allem konzentrierten sich unsere Fassadeningenieure auf die Geometrie des Konstruktionsrasters.

Im Ursprungsentwurf mit 6 × 12 Metern geplant, schlugen wir vor, das Raster auf 4,5 × 8 Meter zu ändern. So passte es exakt zum Stützenraster, die Lasteinleitung in den Rohbau konnte gleichmäßiger erfolgen und die Durchbiegung an den Deckenkanten wurde vereinheitlicht. Gleichzeitig verringerten sich durch die reduzierte Höhe die einzuleitenden Lasten und die geringeren Spannweiten ermöglichten kleinere Profil-Querschnitte und Wandstärken.

Mit einer Musterfassade verdeutlichten wir unser Konzept und konnten das Planungsteam von dem engeren Raster überzeugen. Durch die Reduzierung der Lasten und die einheitlichen Lasteinleitungspunkte konnten auch die Konsolen und die Fassaden-Durchdringungen vereinfacht werden.

Insgesamt ergab sich eine deutliche Einsparung von Material, Zeit und Kosten. Letztlich konnte sogar der Rohbau optimiert werden.

Besuchen Sie die Projektseite für mehr Details